El Davit Analog One-Piece 50048 es un pescante monobrazo de alto rendimiento diseñado para trabajos de acceso vertical, rescate y espacios confinados en entornos industriales exigentes. Su construcción soldada de una sola pieza, combinada con un alcance extendido y gran altura operativa, lo convierten en una solución robusta, fiable y rápida de desplegar, especialmente en entradas profundas. Compatible con bases empotradas o superficiales y con sistemas de rescate, está pensado para quienes necesitan seguridad, simplicidad y eficiencia en campo real.
Diseño y uso
- Davit monobrazo de una sola pieza, completamente soldado y con alcance fijo.
- Indicado para operaciones de acceso vertical, rescate en espacios confinados y trabajos en altura con dispositivo anticaídas o izado.
- Geometría optimizada para entrada profunda en tanques, pozos, EDAR, depósitos, fosos o cámaras subterráneas.
- Su diseño de una pieza reduce puntos débiles, elimina uniones y simplifica el despliegue → menor tiempo de montaje y mínima configuración previa.
- Puede instalarse en cualquiera de las bases descritas más abajo.
Normativa
- Conforme a EN 795:2012 Tipo B → válido como punto de anclaje temporal para 2 usuarios.
- Apto para conexión con sistemas de elevación/rescate certificados bajo EN 1496.
- Uso permitido como estructura soporte de anticaídas con dispositivos EN 360.
- Control e inspecciones según criterios indicados en EN 365.
Materiales y resistencia
- Construcción completamente soldada en acero estructural (mild steel).
- Acabado con recubrimiento CS-500 para resistencia a corrosión en entornos húmedos, industriales o químicos moderados.
- No incorpora secciones desmontables → rigidez estructural superior frente a flexión y torsión.
- Diseñado para soportar cargas operativas de elevación y retención de usuario en suspensión.
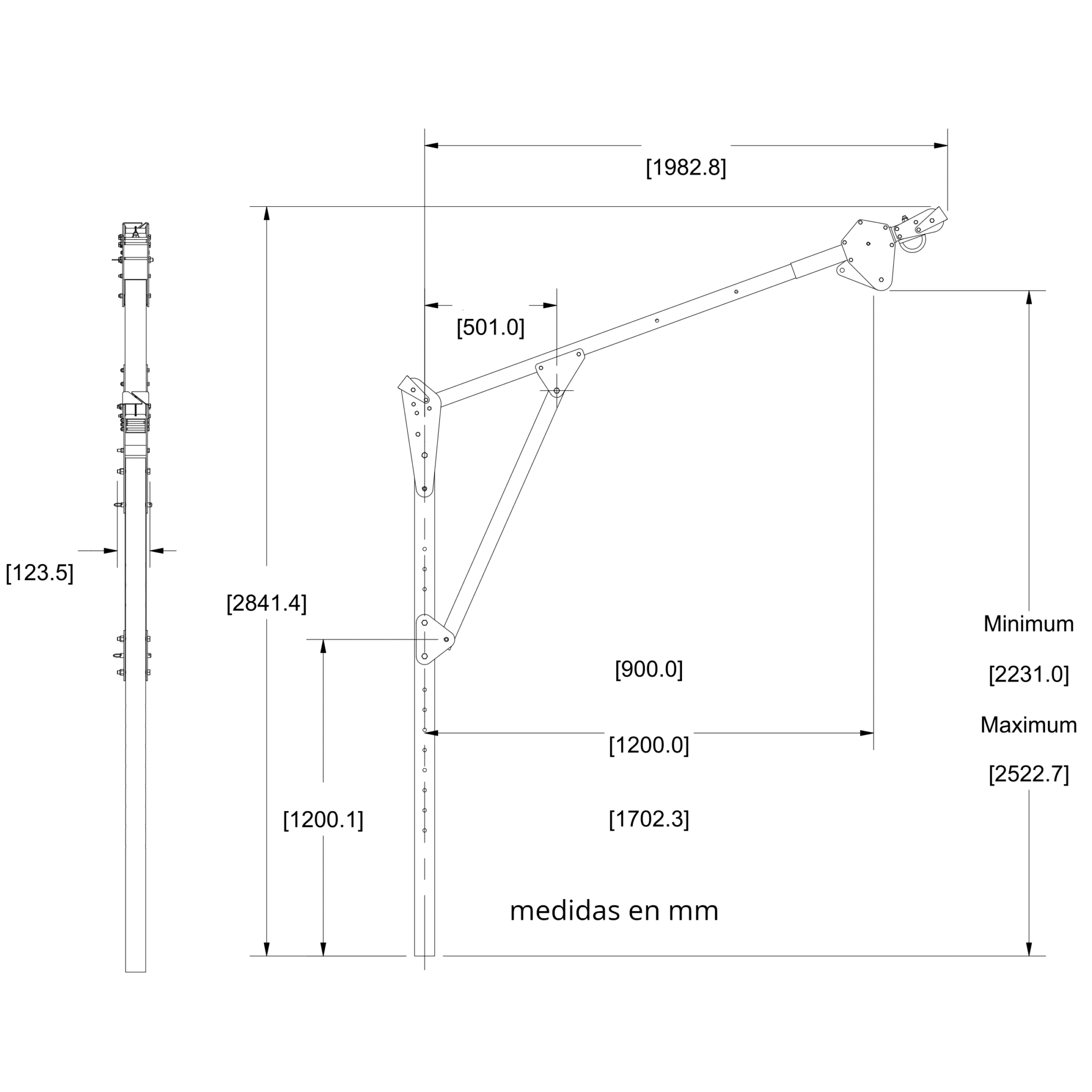
Dimensiones
- Altura total en punta: 2,84 m
- Alcance útil (pluma): 1,85 m
- Geometría orientada a escenarios profundos donde un brazo corto no permite línea de descenso libre.
Compatibilidad y operación
- Compatible con bases de suelo y pared previamente descritas.
- Admite instalación de torno/recuperador en la parte trasera del mástil.
- Uso con torno de rescate EN 1496 DE 20 o 25 mts y anticaídas retráctil EN 360 de 6 a 35 mts..
- No requiere montaje por secciones → Se posiciona y opera directamente en la base.
- Permite giro operativo para facilitar alineación con la vertical de acceso.
***BASES COMPATIBLES CON EL PESCANTE DE LARGO ALCANCE ANALOG**
BASE A SUELO ESTANDAR FLOOR MOUNT (REF: 30031)

Diseño y uso
-
Base de montaje en superficie (Floor Mount) para sistemas Davit modulares.
-
Instalación enrasada sobre suelo plano, pensada para fijación directa sobre pavimento estructural.
-
Uso ideal en espacios donde se requiera un punto de acceso o rescate temporal/permanente sin obra de perforación profunda.
-
Aplicación en espacios confinados, plantas industriales, estaciones de bombeo, depuradoras, tanques y fosos de mantenimiento.
-
Su diseño permite instalar y retirar el mástil davit de manera rápida → la base permanece fija, el brazo no.
Normativa
-
Conforme a EN 795 Tipo B → punto de anclaje temporal para 1 usuario mediante sistema davit.
-
Mantenimiento e inspección regulado bajo EN 365
-
Compatible con dispositivos certificados EN 360, EN 1496 para acceso y rescate en espacios confinados
Materiales y resistencia
-
Construcción en acero estructural (mild steel) de alta resistencia.
-
Tratamiento protector CS-500 para uso industrial y resistencia a corrosión.
-
Capacidad diseñada para soportar cargas asociadas a rescate y suspensión vertical de un usuario según criterios EN795/EN365.
-
Peso aproximado 8,8–8,9 kg → robusta pero manipulable en instalación.
Requisitos del soporte
-
Montaje sobre hormigón estructural nivelado o solera con capacidad portante certificada.
-
No apta para rellenos, suelos inestables o pavimentos degradados.
-
Verificar estado del hormigón, profundidad efectiva y resistencia mínima a compresión antes de instalar.
-
Comprobar ausencia de tuberías, canalizaciones eléctricas o armaduras expuestas.
Sistema de fijación
-
Anclaje mediante tornillería/espárragos mecánicos o resina química estructural.
-
Selección del tipo de anclaje según espesor del hormigón + cálculo de carga.
Compatibilidad y operación
-
Base receptora para pescantes compatibles.
-
El usuario no se ancla directamente a la base, sino al sistema davit instalado sobre ella.
-
Permite retirada del brazo al finalizar la operación → menor exposición y menor vandalismo.
BASE A PARED WALL MOUNT (REF: 30302)

Diseño y uso
- Base de montaje en pared (Wall Mount) para sistemas Davit modulares.
- Instalación directa sobre superficie vertical estructural, fijada mediante cuatro puntos de anclaje.
- Uso indicado en entornos donde no existe superficie de suelo disponible para una base a nivel de pavimento.
- Aplicación en accesos y rescate en alturas y espacios confinados: pozos, fosos, depósitos, estaciones de bombeo, plantas químicas y tratamiento de aguas.
- Su diseño permite instalar y retirar el mástil davit en segundos → la base permanece fija, el brazo solo se coloca cuando se va a trabajar.
Normativa
- Conforme a EN 795 Tipo B → punto de anclaje temporal mediante sistema davit.
- Mantenimiento e inspección regulado bajo EN 365.
- Compatible con dispositivos certificados EN 360 y EN 1496 para operaciones de acceso y rescate.
Materiales y resistencia
- Construcción en acero estructural (mild steel) de alta resistencia.
- Tratamiento protector CS-500 para uso industrial con resistencia a corrosión moderada.
- Diseñada para soportar cargas asociadas a elevación, descenso y rescate vertical de un usuario conforme a criterios EN795/EN365.
- Peso aproximado 4,7 kg → ligera para manipulación y montaje, pero con rigidez suficiente para soportar los pescantes de rescate.
Requisitos del soporte
- Instalación obligatoria sobre pared o muro estructural firme con capacidad portante certificada.
- No apta para tabiques ligeros, bloque hueco, ladrillo sin refuerzo o superficies con degradación mecánica.
- Se recomienda verificar espesor, integridad, ausencia de fisuras, humedad o corrosión antes del montaje.
- Comprobar que no existan instalaciones internas comprometidas: conducciones eléctricas, tuberías o armaduras expuestas.
Sistema de fijación
- Anclaje mediante tornillería o espárragos químicos/mecánicos en 4 puntos de fijación.
- Selección del tipo de fijación condicionada por la resistencia del muro + cálculo estructural de carga.
- Se recomienda ensayo de tracción o prueba de carga tras instalación en obra crítica o rescate.
Compatibilidad y operación
- Base receptora para pescantes compatibles.
- No actúa como anclaje autónomo → requiere instalación del pescante para conexión de EPI.
- Compatible con dispositivos certificados EN 360, EN 1496 para acceso y rescate en espacios confinados
- Montaje y retirada del davit rápida y sin herramientas complejas → elimina ocupación de suelo y reduce exposición a daños o vandalismo.
BASE A SUELO EMBEBIDA PARA HORMIGÓN PREEXISTENTE (REF: 30021)

Diseño y uso
-
Base empotrada para sistemas Davit TUFF BUILT modular extraíble.
-
Configuración flush, enrasada con el pavimento → sin salientes, tráfico seguro.
-
Pensada para instalaciones permanentes donde el davit solo se monta cuando se necesita.
-
Adecuado para trabajos, acceso y rescate en espacios confinados, depuradoras, fosos, bombeos y mantenimiento industrial.
Normativa
-
Conforme EN 795 Tipo B → Punto de anclaje temporal para 1 usuario.
-
Mantenimiento e inspección bajo criterio EN 365.
-
Compatible con dispositivos certificados EN 360, EN 1496 para acceso y rescate en espacios confinados.
Materiales y resistencia
-
Cuerpo fabricado en acero estructural de alta resistencia.
-
Revestimiento/galvanizado apto para ambientes industriales y exteriores (si lo confirmas añadiré tipo de tratamiento exacto).
-
Resistencia diseñada para cargas verticales asociadas a un usuario en suspensión y maniobra de rescate.
Requisitos del soporte
-
Instalación exclusiva sobre hormigón estructural existente (no rellenos, no soleras flotantes).
-
Se recomienda verificar:
-
resistencia a compresión mínima del hormigón,
-
profundidad disponible para el anclaje,
-
ausencia de conducciones bajo la zona.
-
-
No instalar en hormigón fisurado, degradado, corroído o con armadura expuesta.
Sistema de fijación
-
Anclaje con tacos mecánicos o resinas químicas.
-
Elección del sistema según espesor del hormigón + cálculo de carga.
Compatibilidad y operación
-
Base receptora para inserción directa del mástil Davit compatible.
-
El davit solo queda montado durante la operación y se retira después.
-
Mantiene tránsito libre, sin riesgo de tropiezo ni impacto con maquinaria ligera.
-
Dispone tapa (no incluida con la base).
- Compatible con dispositivos certificados EN 360, EN 1496 para acceso y rescate en espacios confinados
BASE A SUELO EMBEBIDA PARA HORMIGÓN FRESCO (REF: 30023)

Diseño y uso
- Base empotrada para sistemas Davit modulares, destinada a ser incorporada durante el vertido de hormigón en obra nueva.
- Diseño flush, nivelado con el pavimento final → superficie continua, sin salientes ni obstáculos.
- Pensada para instalaciones permanentes: proporciona un punto de anclaje integrado desde el inicio de la obra.
- Aplicable en espacios industriales, depósitos, tanques, fosos, estaciones de bombeo, plantas de tratamiento, galerías y zonas de acceso o rescate.
- Permite instalar y retirar el mástil Davit cuando se necesite; la base permanece fija y discreta.
Normativa
- Conformidad mediante cálculo estructural (“Engineering Calculation”) para su integración en obra nueva.
- Permite cumplir los requisitos de seguridad cuando se utiliza con sistemas davit + EPI adecuados, de acuerdo con la normativa aplicable en trabajos en altura y rescate.
Materiales y resistencia
- Fabricada en acero estructural (mild steel), con acabado protector industrial CS-500 para resistencia a la corrosión en condiciones estándar.
- Peso aproximado: 8,4 kg, lo que facilita su manipulación durante la fase de construcción.
- Su diseño garantiza una resistencia adecuada para soportar cargas originadas por maniobras de rescate, suspensión vertical o acceso con davit.
Requisitos del soporte / obra
- Debe instalarse durante el vertido del hormigón: la base ha de quedar inmersa y perfectamente asentada en el encofrado.
- Solo apta para hormigón nuevo, estructural, con las propiedades mecánicas previstas en proyecto.
- No procede su instalación sobre hormigón ya curado o pavimentos existentes: su diseño presupone integración en fase de obra.
Sistema de fijación / integración
- Integración directa en el hormigón fresco durante el vaciado; no requiere fijaciones superficiales posteriores.
- La base queda embebida como parte de la estructura — ideal para puntos de anclaje permanentes con mínima visibilidad y riesgo de tropezones.
- Compatible con mástiles Davit homologados, configurables según necesidad de uso.
Compatibilidad y operación
- Base pensada para trabajar exclusivamente con brazos Davit compatibles de tuff built.
- La conexión real para EPI se realiza mediante davit — la base sola no es punto de conexión.
- Permite disponer de un punto fijo de acceso/rescate sin ocupar espacio útil de suelo, ideal para tanques, pozos o zonas con tránsito o maquinaria.